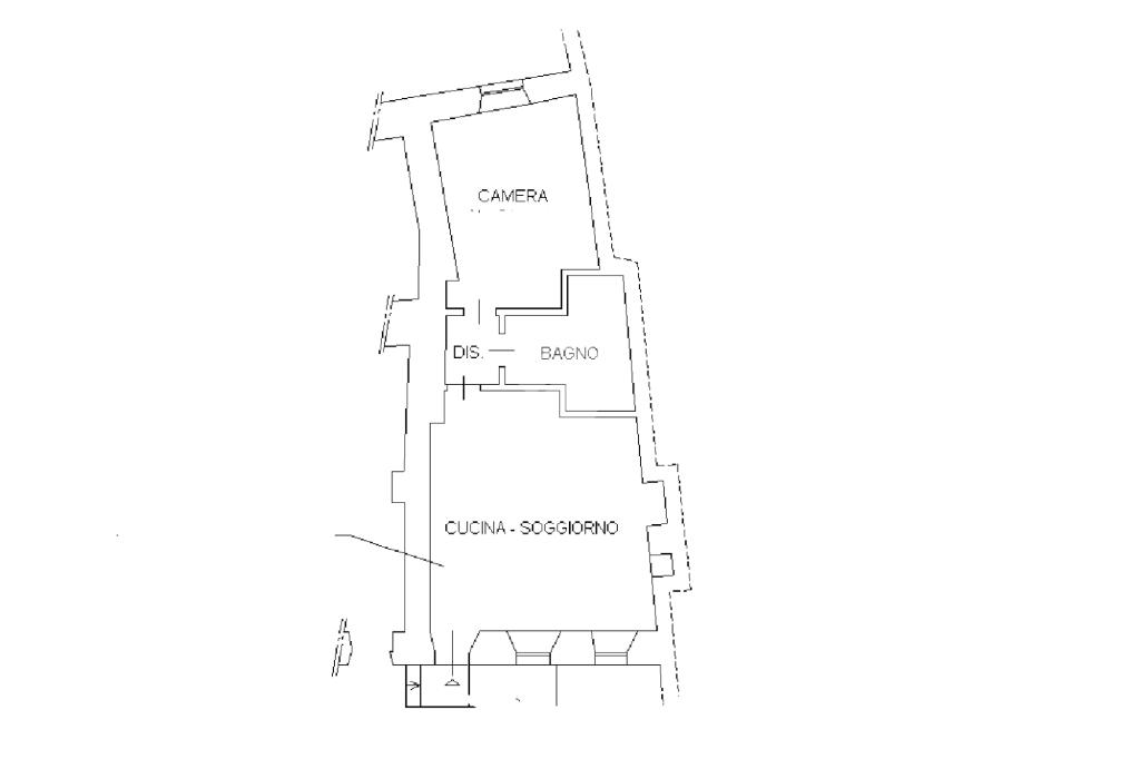
Bilocale in vendita

Gignod, Frazione Buthier alloggio 4 - Gorrey
€ 30.000
2 locali 2 locali
63 Mq 63 Mq
1 bagno 1 bagno

Bilocale in vendita

Gignod, Frazione Buthier alloggio 4 - Gorrey

Descrizione annuncio

GIGNOD: Nel piccolo borgo di Buthier-Gorrey a 1400mt di altitudine, proponiamo bilocale di recente ristrutturazione esposto a sud/ sud-ovest.

L'immobile situato all'interno di una piccola palazzina di 5 appartamenti, è privo di spese condominiali e gode di una vista panoramica sui boschi e su Punta Chaligne considerata una delle mete classiche per gli amanti dello sci alpinismo. L'impianto termico è semi-autonomo a gasolio con contakalorie. Vi è inoltre la possibilità di avere un posto auto scoperto, a parte, a € 5000.

Possibilità di abbinare anche il piano attiguo completo di giardino privato di 80mq per ulteriori Euro 10.000.

L'immobile e stato edificato in edilizia convenzionata con obbligo di locazione a soggetti che rientrano nella categoria emergenza abitativa.

Il comune di Gignod dista circa 8 chilometri da Aosta, nella Valle del Gran San Bernardo e attorno al principale nucleo abitato sorgono numerosi villaggi che si inseriscono nell’armonioso mosaico del paesaggio.

Oggi Gignod è divenuta una località di soggiorno per turisti alla ricerca della tranquillità degli spazi naturali, che offrono impagabili scorci panoramici sui monti della Valpelline e sul maestoso massiccio svizzero del Grand Combin.

Mostra tutto

Nelle vicinanze

Farmacia Farmacia
Farmacia di Gignod
2,7 Km
Negozi Negozi
Alimentari Le Bon Manger
2,6 Km
Bar Bar
Bar Tabacchi La Gabella
2,6 Km
Ristoranti Ristoranti
La Clusaz
1,7 Km
Ristorante Pizzeria Bellevue
2,9 Km
Trattoria Marietty
2,9 Km
Mostra tutto

Caratteristiche

Rif.:
61132939
Piano:
1 di 2 (Piano terra)
Posti auto:
1
Balconi:
1
Camere da letto:
1
Arredamento:
Assente
Mostra tutto
Prezzo Prezzo
€ 30.000
Rata mutuo Rata mutuo
€ 141 / mese
Spese annue Spese annue
€ 0
Proponi il tuo prezzoProponi il tuo prezzo

Classe Energetica

D
D
D
D
D
D
D
D
D
EP globale non rinnovabile:
109.90 kW h/m² anno
EP globale rinnovabile:
4.00 kW h/m² anno
EP invernale del fabbricato:
EP estiva del fabbricato:
Anno di costruzione:
1900
Riscaldamento:
Centralizzato
Tipo impianto:
A radiatori
Tipo alimentazione:
Gasolio

Ti interessa visionare l'immobile?

Fissa un appuntamento  Fissa un appuntamento

Richiedi informazioni

Clicca su Leggi per aprire l'informativa
* Questi campi sono obbligatori

Calcola il tuo mutuo

Semplice e senza impegno
Anticipo

( % )
Mutuo

( % )

pochi semplici passi

inserisci i tuoi dati
Questionario completato
Grazie per aver richiesto un appuntamento senza impegno con un nostro Consulente del Credito e Assicurativo.

Hai inserito correttamente tutti i dati necessari e a breve riceverai una e-mail con un link da convalidare per inviare i tuoi dati.
Affiliato
Studio Grand Combin Snc
Loc. Rue de La Maladière, 5 11020 Saint-Christophe (AO)

Il nostro staff


  • Fabio Gabriele Lugon
    Affiliato

  • Cristian Nicco
    Affiliato

  • Lara Rotundo
    Coordinatrice

  • Angelica Scardino
    Collaboratrice
Loc. Rue de La Maladière, 5 11020 Saint-Christophe (AO)
Zona: Saint Christophe - Charvensod - Pollein - Vallata del Gran San Bernardo
Mostra su mappa
Orari: lunedì - venerdì 9.00-12.30 - 14.30-19.30; sabato chiusura 19.00; domenica chiuso.
Affiliato
Studio Grand Combin Snc
Loc. Rue de La Maladière, 5 11020 Saint-Christophe (AO)

2026 Tecnocasa Franchising S.p.A. - P. IVA 08365160152 - Via Monte Bianco 60/A 20089 Rozzano (MI). Ogni agenzia ha un proprio titolare ed è autonoma. Privacy policy | Policy utilizzo | Cookie policy